century21homes.imot.bg Обяви 0 За нас Контакти
Дава под Наем ОФИС
град Велико Търново, Център
510 €
997.47 лв.

(6.38 €, 12.48 лв./m2)
Не се начислява ДДС
История на цената
Коригирана в 17:48 на 13 май, 2026 год.
Обявата е посетена 1869 пъти.
Площ:
80 m2
Етаж:
Партер от 3

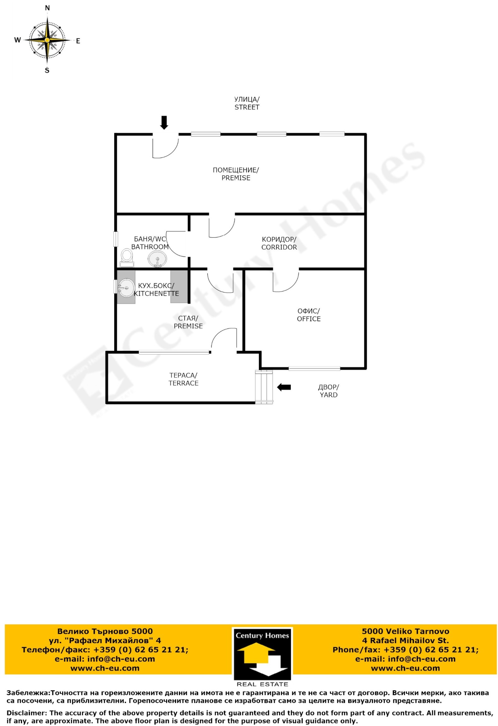
Описание на имота:


Предлаганият под наем имот се намира в центъра на града, в близост до сградата на Районен съд Велико Търново и Кооперативен пазар.
Разположен на партерен етаж, офисът е с площ 80 кв. м., разпределени в приемна зала, коридор, баня с тоалетна и две стаи, в една от които има обособен кухненски бокс и излаз към тераса, с подход към двор. Имотът се отдава необзаведен, с PVC дограма, стени с латексно покририе и подова настилка теракот. В наемната цена е включено и едно паркомясто.
Мястото е изключително комуникативно, в близост до множество магазини, автобусни спирки, училища и парк.
Реф. номер:111367
Особености
Необзаведен
За контакт:
0896840710

Този имот се предлага само на частни лица
Брокер:
Мария Червенакова
0896840710 , 062652121
Още оферти от брокера: Продава | Дава под наем | Купува | Наема
Агенция:
СЕНТЧЪРИ ХОУМС
062 652121
СЕНТЧЪРИ ХОУМС logo
Медал за прослужено време
В imot.bg от 2007 г.
century21homes.imot.bg
Адрес:
област Велико Търново, гр. Велико Търново, ул.Рафаел Михайлов 4
http://ch-eu.com
ИЗПРАТИ ЗАПИТВАНЕ
ИЗПРАТИ ЗАПИТВАНЕТО

Дава под Наем ОФИС
град Велико Търново, Център
Обява: 2h173313024670638

510 €
997.47 лв.
История на цената
(6.38 €, 12.48 лв./m2)

Не се начислява ДДС
ЗАПАЗИ ОБЯВАТА

Местоположение: град Велико Търново, Център

Допълнителни данни за имотите в района и сравнение с други райони

Покажи

Период

и 5 месеца

* Средните цени са определени чрез медианна стойност