century21homes.imot.bg Обяви 0 За нас Контакти
Продава КЪЩА
област Велико Търново, с. Горна Липница
20 000 €
39 116.60 лв.

(250 €, 488.96 лв./m2)
Не се начислява ДДС
История на цената
Коригирана в 11:48 на 14 април, 2026 год.
Обявата е посетена 1559 пъти.
Площ:
80 m2
Двор:
900 m2
Строителство:
Гредоред, Въведен в експлоатация

Описание на имота:


Предлагаме за продажба двуетажна къща с площ от 80 кв. м., разположена в живописното село Горна Липница, община Павликени, само на 35 км от Велико Търново.
Имотът е с голям потенциал, подходящ за реновиране и превръщане в уютен семеен дом или ваканционна къща. Къщата се продава необзаведена и позволява пълна свобода при оформлението и дизайна на интериора.
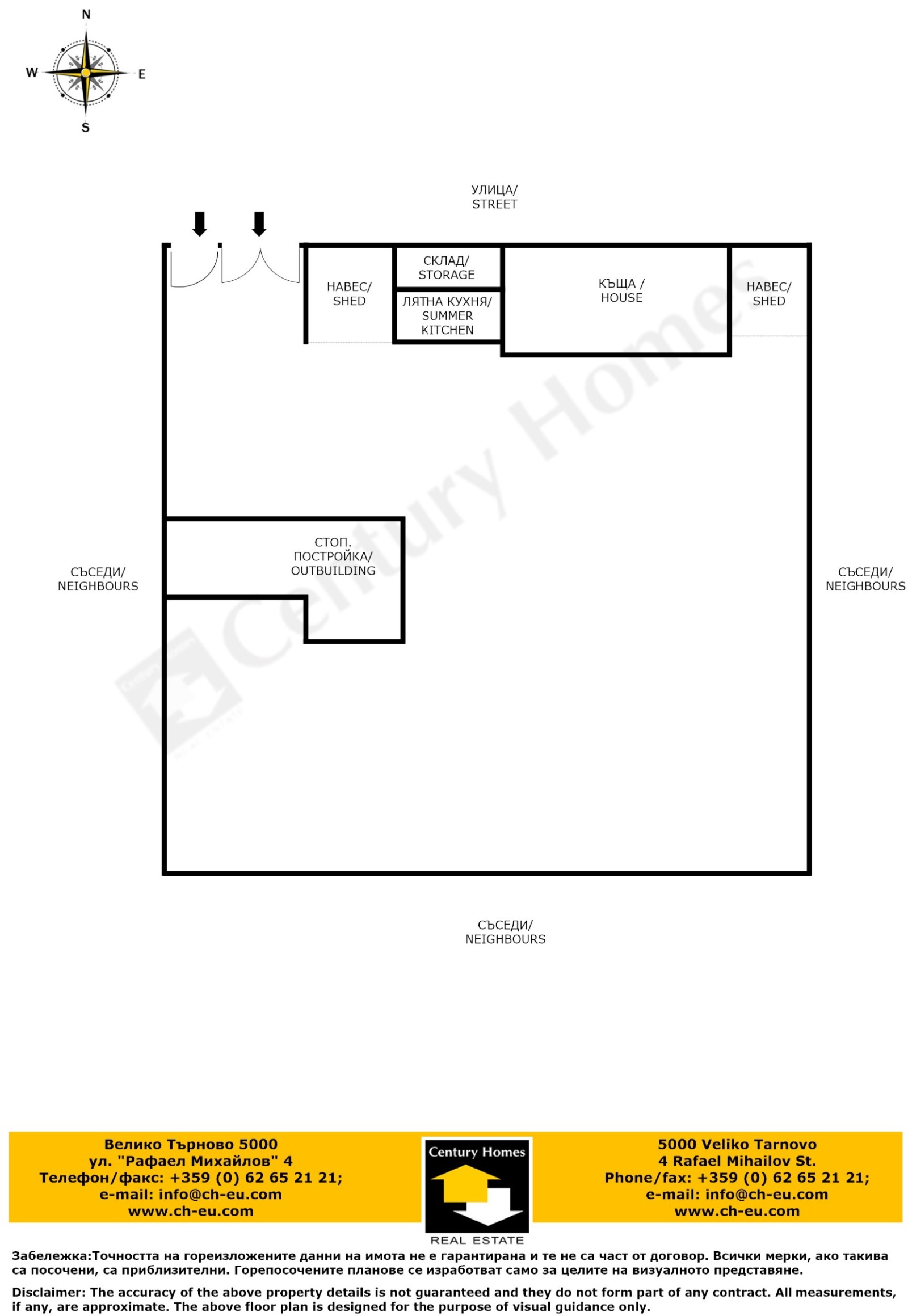
Първият етаж е леко вкопан и включва входно антре, което преминава в трапезария, отделна кухня и дневна. Външно стълбище отвежда до втория етаж, където се намира южна тераса с приятна гледка към целия двор. От терасата се влиза в коридор, свързващ три спални помещения, едно от които е с автентично огнище запазен детайл от стария битов стил.
В пристройка до къщата е обособена просторна лятна кухня с прилежащ килер. Допълнително удобство са навесът от едната страна на сградата и голямата каменна плевня от другата, която предлага възможности за преустройство или използване като складово пространство. В двора се намира и стопанска постройка, подходяща за различни нужди.
Парцелът е с площ от 900 кв. м., равен, с правилна форма, ограден с каменна и телена ограда, което осигурява уединение и сигурност. Имотът е с лесен достъп по поддържан селски път, а самото село е добре устроено, с редовен автобусен транспорт до гр. Павликени и всички основни удобства за постоянно живеене.
Този имот е чудесна възможност за хора, търсещи спокойствие, природа и пространство, с възможност да създадат дом по свой вкус.

За да разгледате виртуален тур, моля копирайте и поставете линка във Вашия браузер
ВИРТУАЛЕН ТУР:https://app.cloudpano.com/tours/gtAaoAAFS
РЕФ. :140325
Особености
Гредоред
С паркинг
За контакт:
0896840720

Този имот се предлага само на частни лица
Брокер:
Румен Василев
0896840720 , 062652121
Още оферти от брокера: Продава | Дава под наем | Купува | Наема
Агенция:
СЕНТЧЪРИ ХОУМС
062 652121
СЕНТЧЪРИ ХОУМС logo
Медал за прослужено време
В imot.bg от 2007 г.
century21homes.imot.bg
Адрес:
област Велико Търново, гр. Велико Търново, ул.Рафаел Михайлов 4
http://ch-eu.com
ИЗПРАТИ ЗАПИТВАНЕ
ИЗПРАТИ ЗАПИТВАНЕТО

Продава КЪЩА
област Велико Търново, с. Горна Липница
Обява: 1j175887679068319

20 000 €
39 116.60 лв.
История на цената
(250 €, 488.96 лв./m2)

Не се начислява ДДС
ЗАПАЗИ ОБЯВАТА

Местоположение: област Велико Търново, с. Горна Липница