Обяви За нас Контакти
Продава 3-СТАЕН
град Велико Търново, Зона Б
117 000 €
228 832.11 лв.

(1 315 €, 2 571.92 лв./m2)
Не се начислява ДДС
История на цената
Коригирана в 14:48 на 9 февруари, 2026 год.
Обявата е посетена 5649 пъти.
Площ:
89 m2
Етаж:
1-ви от 6
Газ:
ДА
Строителство:
Тухла, Ще бъде въведен в експлоатация 2025 г.

Описание на имота:


Апартамент с две спални, намиращ се в новострояща се жилищна сграда в началото на кв. Зона Б, в град Велико Търново. Мястото е комуникативно с лесен достъп до главните пътни артерии в града.
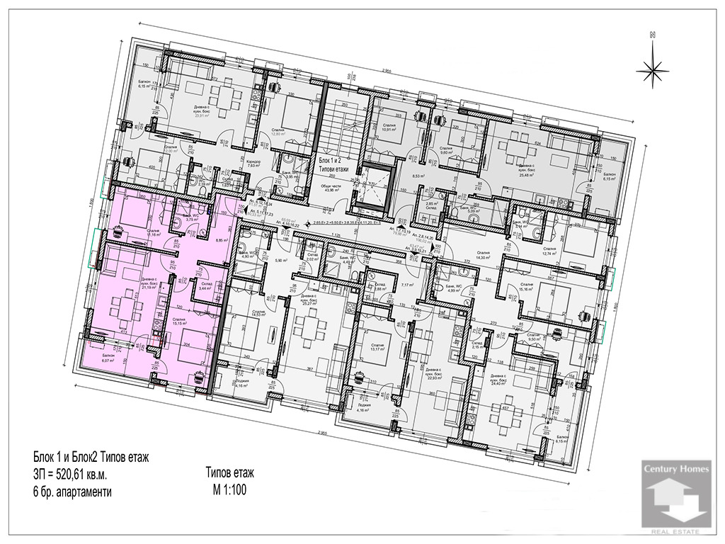
Апартаментът се намира на 1 етаж с юго-западно изложение. Апартаменти със същата планировка има още на 2, 3 и 4 етажи.
Общата площ на имота е 89,22 кв.м., от които 8,89 кв.м. са общи части. Състои се от две спални (11,16 и 15,15 кв.м.), дневна с кухненска част (21,19 кв.м.) и тераса, баня/WC, килер и коридор.
Комплексът ще се състои от две сгради и ще помещава общо 60 апартамента, по 15 във всеки вход. За по-голямо ще бъдат изградени гаражи и паркоместа.
Между двата блока ще бъде разположена детска площадка с модерни съоръжения и ударопоглъщаща настилка, която ще отговаря на всички съвременни изисквания за функция и безопасност.
Всяка сграда е проектирана по 6 апартамента на етаж, с една или с две спални и различни възможности за обединяване. Всяко жилище разполага със складово помещение. Създадена с идеята за модерен лукс и безкомпромисно качество от първите щрихи до най-малкия детайл.
Апартаментите се издават в степен на завършеност по БДС на мазилка и замазка, поставена ГАЗ инсталация, блиндирани входни врати, висококачествена дограма, външна топлоизолация, монтирани ключове и контакти, звънчева и видео домофонна инсталация, розетки за телефонна система, телевизия и интернет.
Има гъвкави схеми на плащане, които предвиждат:
30% - Първа вноска при подписване на предварителния договор за покупко-продажба
30% - Плащане при Акт 14
40% - Плащане при Акт 16
Поради динамичния пазар, за по-пълна и точна информация, моля, свържете се с брокера на офертата за актуалните етажи и цени на апартаменти и гаражи.
Реф. : 104776
Особености
Тухла
За контакт:
0898 568 560

Този имот се предлага само на частни лица
Брокер:
Дилян Суков
+359/0/62652121; 0898568560
Още оферти от брокера: Продава | Дава под наем | Купува | Наема
Агенция:
СЕНТЧЪРИ ХОУМС
062 652121
СЕНТЧЪРИ ХОУМС logo
Медал за прослужено време
В imot.bg от 2007 г.
century21homes.imot.bg
Адрес:
област Велико Търново, гр. Велико Търново, ул.Рафаел Михайлов 4
http://ch-eu.com
ИЗПРАТИ ЗАПИТВАНЕ
ИЗПРАТИ ЗАПИТВАНЕТО

Продава 3-СТАЕН
град Велико Търново, Зона Б
Обява: 1c171031714233753

117 000 €
228 832.11 лв.
История на цената
(1 315 €, 2 571.92 лв./m2)

Не се начислява ДДС
ЗАПАЗИ ОБЯВАТА

Местоположение: град Велико Търново, Зона Б

Допълнителни данни за имотите в района и сравнение с други райони

Покажи

Период

и 2 месеца

* Средните цени са определени чрез медианна стойност